Bản vẽ nhà 2 tầng - Khám Phá Những Ý Tưởng Thiết Kế Độc Đáo và Hiện Đại - THIẾT KẾ XÂY DỰNG TRẦN HOÀNG

Bản vẽ nhà 2 tầng – Khám Phá Những Ý Tưởng Thiết Kế Độc Đáo và Hiện Đại

Bản vẽ nhà 2 tầng đang trở thành xu hướng thiết kế lý tưởng cho nhiều gia đình trong năm 2024. Với vẻ đẹp hiện đại, công năng sử dụng hợp lý cùng chi phí xây dựng phải chăng, không có gì ngạc nhiên khi mẫu nhà này được ưa chuộng đến vậy. Trong bài viết này, chúng ta sẽ cùng nhau khám phá những ưu điểm nổi bật, lưu ý thiết kế và các mẫu bản vẽ nhà 2 tầng đẹp mắt.

Ưu điểm của mẫu bản vẽ nhà 2 tầng

Mẫu bản vẽ nhà 2 tầng không chỉ đơn thuần là một công trình kiến trúc, mà còn mang lại nhiều lợi ích cho gia chủ. Dưới đây là những ưu điểm nổi bật mà mẫu nhà này sở hữu:

Ưu điểm của mẫu bản vẽ nhà 2 tầng

Giá trị thẩm mỹ cao

Thiết kế nhà 2 tầng thường chú trọng đến yếu tố thẩm mỹ. Với sự sáng tạo trong việc bố trí không gian và lựa chọn vật liệu, mẫu nhà này giúp tạo ra những hình ảnh ấn tượng, cuốn hút. Điểm nhấn ở mặt tiền cùng các đường nét kiến trúc tinh tế không chỉ làm tăng giá trị thẩm mỹ mà còn mang lại sự gần gũi với thiên nhiên.

Diện tích xây dựng tiết kiệm

Nhà 2 tầng giúp tiết kiệm diện tích xây dựng tối đa. Dù bạn sở hữu một khu đất nhỏ hay lớn, việc thiết kế theo mô hình nhà ống hoặc hình hộp vẫn đáp ứng tốt nhu cầu sinh hoạt của cả gia đình. Điều này cũng đồng nghĩa với việc bạn có thể tận dụng diện tích còn lại cho các không gian xanh hoặc sân vườn.

Thiết kế nhanh chóng và tiết kiệm chi phí

Một trong những lý do khiến nhiều gia đình chọn xây dựng nhà 2 tầng chính là khả năng thi công nhanh chóng và tiết kiệm chi phí. Các mẫu bản vẽ đã được chuẩn bị sẵn sẽ giúp gia chủ dễ dàng triển khai hơn so với việc thiết kế một ngôi nhà mới từ đầu.

Phù hợp với tất cả mọi người

Mẫu nhà 2 tầng được thiết kế để phù hợp với nhiều đối tượng và hoàn cảnh khác nhau. Dù bạn sống ở thành phố hay nông thôn, mẫu nhà này vẫn có thể đáp ứng tốt cả về diện tích lẫn chi phí đầu tư.

Lưu ý khi thiết kế bản vẽ nhà 2 tầng

Để có được một ngôi nhà 2 tầng hoàn hảo, gia chủ cần lưu ý một số vấn đề quan trọng trong quá trình thiết kế. Dưới đây là những điều cần cân nhắc:

Lưu ý khi thiết kế bản vẽ nhà 2 tầng

Lựa chọn khối kiến trúc phù hợp

Khi bắt tay vào thiết kế, việc đầu tiên bạn cần làm là xác định khối kiến trúc phù hợp với diện tích đất của mình. Nếu bạn sở hữu một mảnh đất rộng, việc thiết kế biệt thự 2 tầng sẽ là một lựa chọn tuyệt vời. Ngược lại, nếu mặt tiền hạn chế, bạn có thể chọn kiểu nhà ống hoặc nhà hình hộp.

Xác định rõ diện tích và giấy phép xây dựng

Trước khi thực hiện xây dựng, xác định rõ khu vực và diện tích xây dựng là rất cần thiết. Điều này không chỉ đảm bảo cho bạn có đủ không gian sinh sống mà còn tránh những phiền phức phát sinh trong quá trình xin giấy phép xây dựng. Việc có giấy tờ pháp lý đầy đủ sẽ giúp bạn yên tâm hơn khi bắt đầu công trình.

Tài chính xây nhà

Tài chính là yếu tố then chốt quyết định đến kiểu dáng, phong cách và chất lượng công trình. Trước khi bắt đầu xây dựng, hãy xem xét kỹ khả năng tài chính của mình để đưa ra lựa chọn phù hợp nhất. Với mức đầu tư tối thiểu khoảng 500 triệu, bạn đã có thể sở hữu một căn nhà 2 tầng tiện nghi.

Bản vẽ nhà 2 tầng

Bố trí công năng sử dụng và hướng nhà

Việc bố trí công năng sử dụng là rất quan trọng. Gia chủ nên xác định rõ số lượng phòng cần thiết dựa trên số thành viên trong gia đình, từ đó có thể thiết kế sao cho hợp lý nhất. Hướng nhà cũng là một yếu tố cần được chú ý, bởi nó ảnh hưởng trực tiếp đến ánh sáng tự nhiên và không khí trong nhà.

Chọn phong cách thiết kế kiến trúc

Hiện nay, có rất nhiều phong cách thiết kế cho nhà 2 tầng như hiện đại, cổ điển, tân cổ điển hay tối giản. Gia chủ cần xác định phong cách phù hợp với sở thích cá nhân và tổng thể kiến trúc xung quanh.

Lựa chọn màu sắc chủ đạo

Màu sắc là yếu tố tạo nên ấn tượng đầu tiên cho ngôi nhà. Khi lựa chọn màu sắc, bạn nên xem xét đến sở thích cá nhân, phong thủy cũng như cách phối hợp với không gian xung quanh. Một gam màu hài hòa sẽ tạo cảm giác thoải mái và dễ chịu cho các thành viên trong gia đình.

Lựa chọn đơn vị thiết kế bản vẽ nhà 2 tầng uy tín

Cuối cùng, việc tìm kiếm một đơn vị thiết kế uy tín là vô cùng quan trọng. Một công ty có kinh nghiệm sẽ không chỉ giúp bạn hoàn thiện bản vẽ mà còn hỗ trợ trong quá trình thi công. Họ có thể tư vấn và điều chỉnh bản thiết kế để phù hợp với ngân sách và nhu cầu của bạn.

Một số mẫu bản vẽ nhà 2 tầng đẹp, công năng đầy đủ

Dưới đây là một số mẫu bản vẽ nhà 2 tầng độc đáo, tiện nghi mà bạn có thể tham khảo:

Bản vẽ nhà 2 tầng hiện đại

Mẫu nhà 2 tầng hiện đại với diện tích 70m2, sở hữu mặt tiền đơn giản nhưng vẫn cực kỳ ấn tượng. Các mảng kính lớn được sử dụng để đón ánh sáng tự nhiên, tạo sự thông thoáng và gần gũi với thiên nhiên. Không gian xanh bao quanh nhà giúp thanh lọc không khí, tạo nên môi trường sống trong lành cho gia đình.

Bản vẽ nhà 2 tầng hiện đại

Bản vẽ mặt bằng nhà 2 tầng 70m2

Mặt bằng tầng trệt của mẫu nhà 70m2 được bố trí gồm một phòng khách rộng rãi, phòng ăn và một phòng ngủ. Khu vực phía trước có sân để xe khá thoải mái. Cầu thang dẫn lên tầng 1 được đặt ở vị trí thuận tiện, giúp tiết kiệm diện tích.

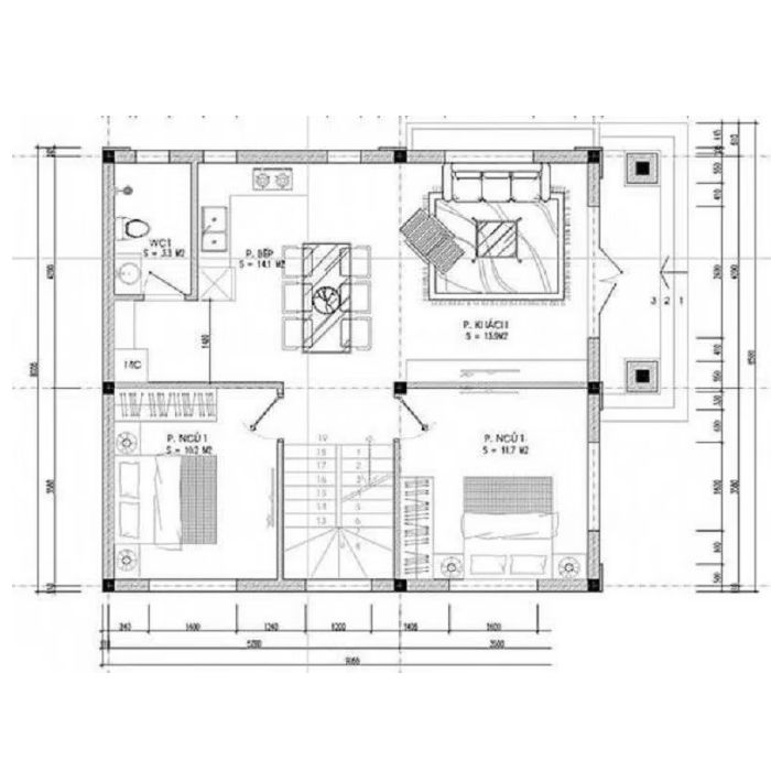
Bản vẽ tầng 2 nhà 2 tầng 70m2

Bản vẽ tầng 2 nhà 2 tầng 70m2

Ở tầng 2, ngôi nhà được thiết kế với 2 phòng ngủ. Một phòng ngủ dành cho phụ huynh có hướng ra ban công thoáng mát, còn phòng ngủ còn lại được bố trí cho con cái. Không gian sinh hoạt chung được thiết kế tiện lợi và thoải mái.

Bản vẽ nhà 2 tầng mái Thái

Nhà 2 tầng mái Thái là một lựa chọn phổ biến ở Việt Nam. Với đặc trưng mái dốc, kiểu dáng này không chỉ tạo nên vẻ đẹp truyền thống mà còn rất phù hợp với khí hậu Việt Nam. Mẫu nhà này thường được thiết kế với không gian bên ngoài rộng rãi, giúp gia chủ có thể tận hưởng cuộc sống trong không gian xanh thoáng đãng.

Bản vẽ nhà 2 tầng mái Nhật

Nếu bạn yêu thích sự tối giản và tinh tế, mẫu nhà 2 tầng mái Nhật sẽ là sự lựa chọn hoàn hảo. Với thiết kế độc đáo, mẫu nhà này thường có khoảng sân rộng và được bố trí nhiều cây xanh, mang lại cảm giác bình dị và gần gũi.

Bản vẽ nhà 2 tầng mái Nhật

Bản vẽ nhà ống 2 tầng

Nhà ống 2 tầng thường xuất hiện nhiều trong các khu đô thị đông đúc. Với thiết kế dài và hẹp, mẫu nhà này giúp tối ưu hóa diện tích sử dụng. Trang trí nội thất bên trong có thể rất linh hoạt, giúp gia chủ tạo nên không gian sống riêng biệt, ấm cúng.

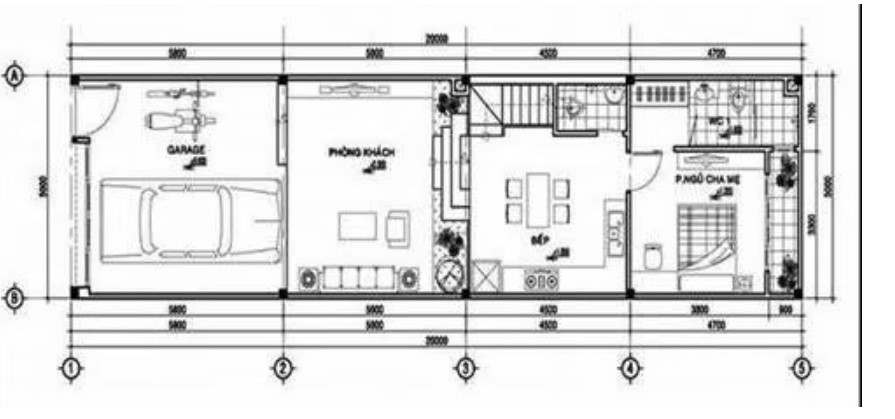
Bản vẽ nhà 2 tầng có gara ô tô

Bản vẽ nhà 2 tầng có gara ô tô

Mẫu nhà 2 tầng kết hợp gara ô tô là lựa chọn lý tưởng cho các gia đình hiện đại. Với thiết kế khoa học, gara được tích hợp ngay tại tầng trệt, giúp tiết kiệm diện tích mà vẫn đảm bảo tính tiện nghi cho cuộc sống hàng ngày.

Bản vẽ nhà 2 tầng 5x18m 4 phòng ngủ

Mẫu nhà này được thiết kế tối ưu cho các gia đình đông thành viên. Với diện tích 5x18m, ngôi nhà sở hữu 4 phòng ngủ cùng các không gian sinh hoạt chung rộng rãi, phù hợp cho một gia đình có nhiều thế hệ sinh sống cùng nhau.

Bản vẽ nhà 2 tầng 5x18m 4 phòng ngủ

Bản vẽ nhà 2 tầng 6x12m 3 phòng ngủ

Chỉ với diện tích 6x12m, mẫu nhà này vẫn đảm bảo cung cấp đủ không gian cho 3 phòng ngủ với thiết kế hợp lý, tối ưu hóa sự tiện nghi và thoải mái cho gia chủ. Các không gian sinh hoạt chung được sắp xếp gần gũi nhau, tạo ra sự kết nối giữa

các thành viên trong gia đình.

Bản vẽ nhà 2 tầng 6x12m 3 phòng ngủ

Bản vẽ nhà 2 tầng 4x15m

Với kích thước 4x15m, mẫu nhà này phù hợp với những khu đất có chiều sâu lớn. Nó được thiết kế với 2 phòng ngủ, cùng với các không gian sinh hoạt chung được bố trí một cách hợp lý.

Bản vẽ nhà 2 tầng 4x15 m

Bản vẽ nhà 2 tầng 5×15

Mẫu nhà 2 tầng 5x15m với thiết kế thân thiện, đơn giản nhưng không kém phần hiện đại. Nó là sự lựa chọn lý tưởng cho những gia đình trẻ, với các phòng ngủ và không gian sinh hoạt được thiết kế linh hoạt.

Bản vẽ nhà 2 tầng 5x15

Bản vẽ nhà 2 tầng 4×14

Với kích thước 4x14m, ngôi nhà này được thiết kế theo phong cách hiện đại, phù hợp với các gia đình nhỏ. Mỗi không gian trong nhà đều được tối ưu hóa để mang lại sự thoải mái và tiện nghi cho các thành viên.

Bản vẽ nhà 2 tầng 4x14 -1

Bản vẽ nhà 2 tầng chữ L sang trọng

Nhà 2 tầng chữ L không chỉ tạo nên vẻ đẹp sang trọng mà còn giúp tối ưu hóa diện tích xây dựng. Thiết kế chữ L cho phép gia chủ tạo ra nhiều không gian sinh hoạt ngoài trời như sân vườn, tạo điều kiện thuận lợi cho các hoạt động gia đình.

Bản vẽ nhà 2 tầng chữ L sang trọng

Bản vẽ nhà 2 tầng chữ L sang trọng

Như vậy, mẫu bản vẽ nhà 2 tầng chắc chắn là một lựa chọn lý tưởng cho nhiều gia đình hiện nay. Với những ưu điểm vượt trội và khả năng tùy biến linh hoạt trong thiết kế, nó không chỉ mang lại không gian sống thoải mái mà còn thể hiện gu thẩm mỹ của gia chủ. Hy vọng qua bài viết này, bạn sẽ tìm được nguồn cảm hứng cho chính ngôi nhà trong tương lai của mình!

Leave a Reply

X
X